-
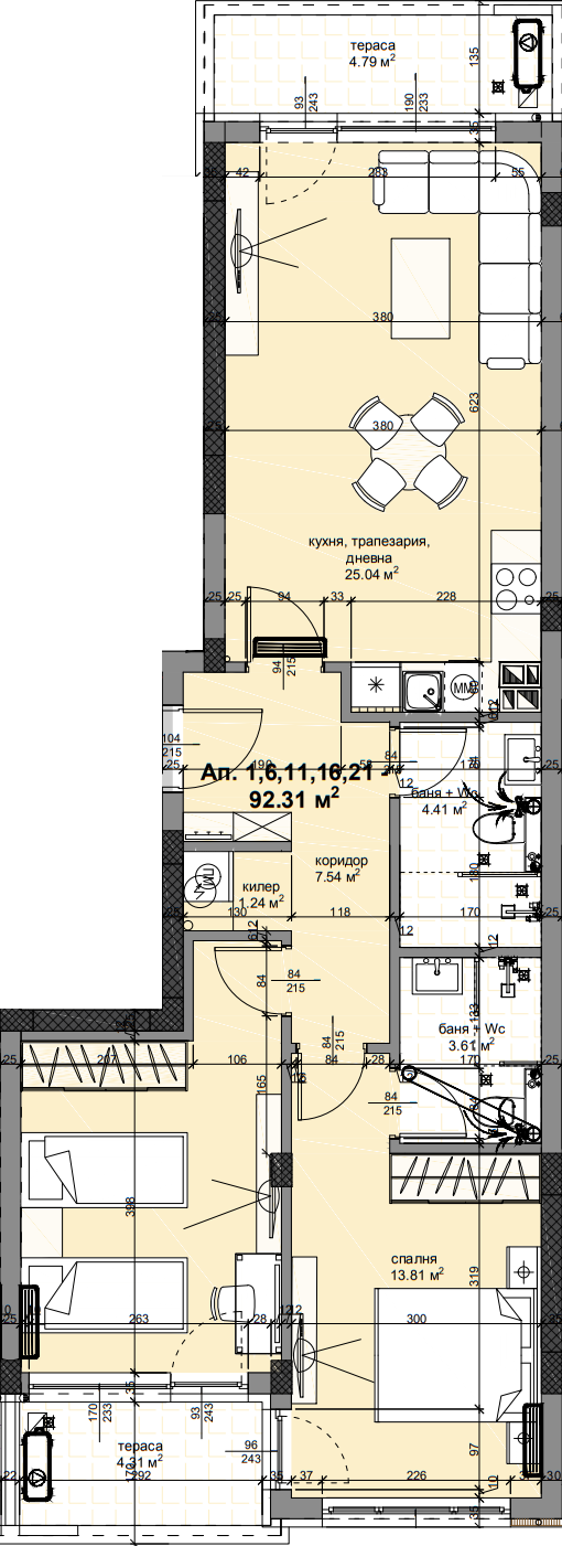
Застроена площ кв.м.
92.31 м2 -
Общи части от сграда КВ.М.
12.16 м2 -
-
Обща застроена площ кв.м.
104.47 м2
-
Етаж
5 -
секция
Блок Б -
Статус
Свободен - Имам интерес към следния апартамент - Ап.16, Секция , Етаж