-
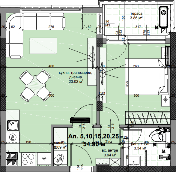
Застроена площ кв.м.
54.90 м2 -
Общи части от сграда КВ.М.
7.23 м2 -
-
Обща застроена площ кв.м.
62.13 м2
-
Етаж
3 -
секция
-
Статус
Свободен - Имам интерес към следния апартамент - Ап.10, Секция , Етаж