-
Застроена площ кв.м.
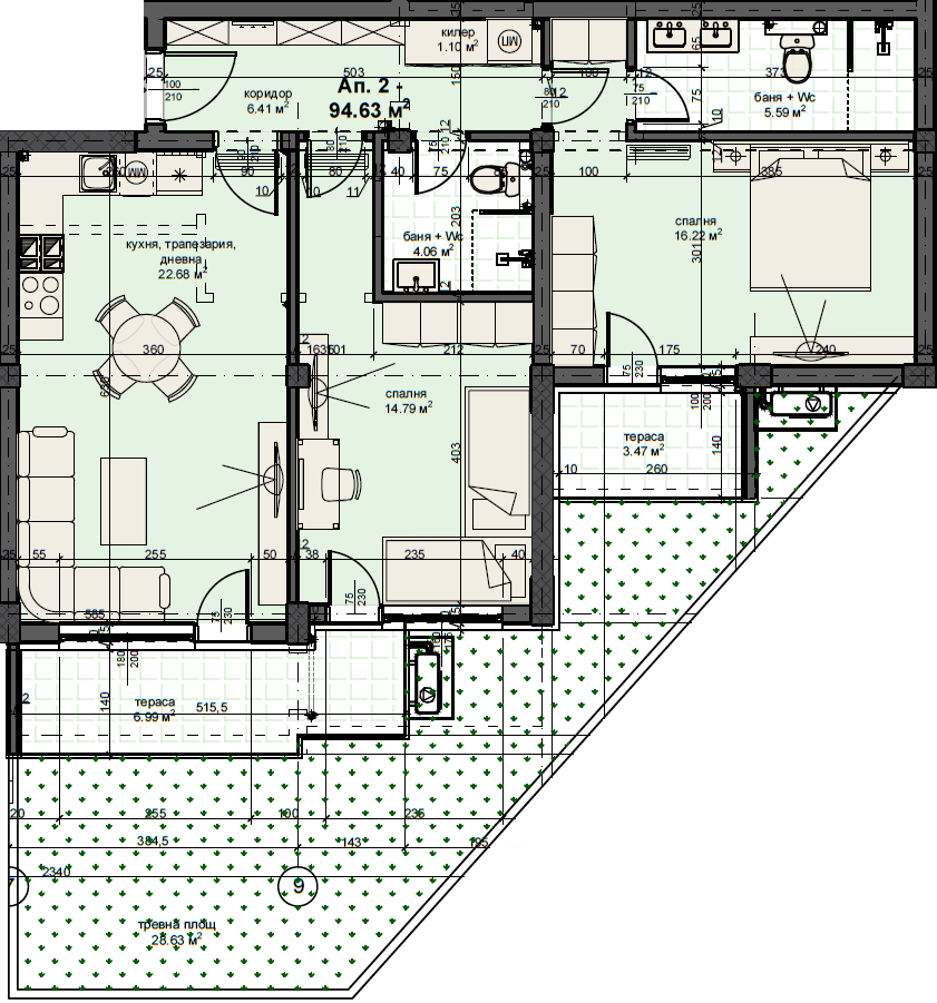
94.63 м2 -
Общи части от сграда КВ.М.
16.77 м2 -
-
Обща застроена площ кв.м.
107.06 м2
-
Етаж
1 -
секция
Блок Р -
Статус
Свободен - Имам интерес към следния апартамент - Ап.2, Секция , Етаж 1