-
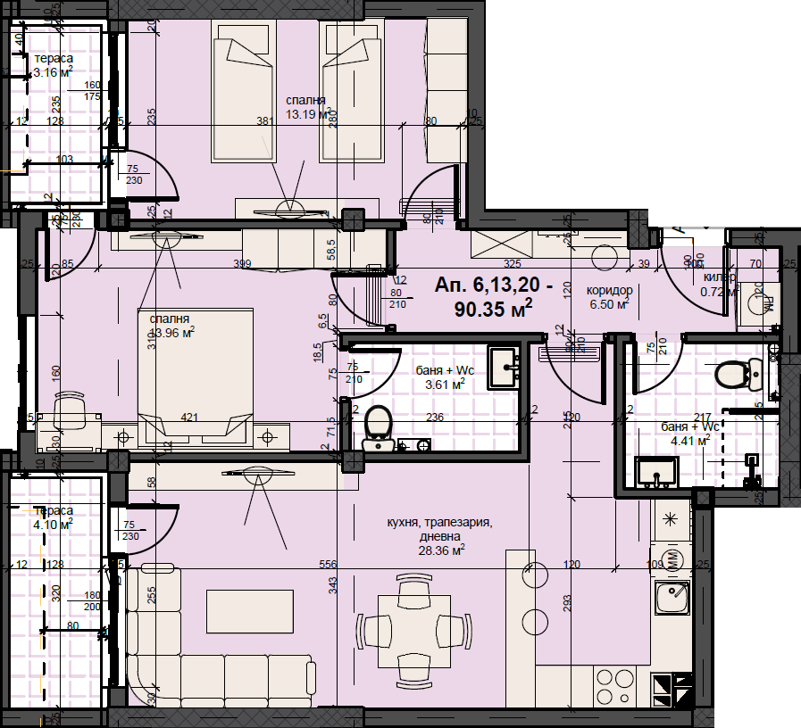
Застроена площ кв.м.
90.35 м2 -
Общи части от сграда КВ.М.
13.29 м2 -
-
Обща застроена площ кв.м.
103.64 м2
-
Етаж
4 -
секция
Блок С -
Статус
Свободен - Имам интерес към следния апартамент - Ап.20, Секция , Етаж 4