-
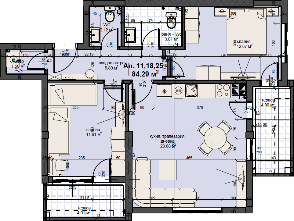
Застроена площ кв.м.
84.29 м2 -
Общи части от сграда КВ.М.
12.40 м2 -
-
Обща застроена площ кв.м.
96.69 м2
-
Етаж
2 -
секция
Блок С -
Статус
Свободен - Имам интерес към следния апартамент - Ап.11, Секция , Етаж 2