-
Застроена площ кв.м.
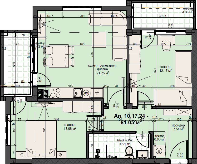
81.05 м2 -
Общи части от сграда КВ.М.
11.92 м2 -
-
Обща застроена площ кв.м.
92.97 м2
-
Етаж
4 -
секция
Блок К -
Статус
Свободен - Имам интерес към следния апартамент - Ап.24, Секция , Етаж 4