-
Застроена площ кв.м.
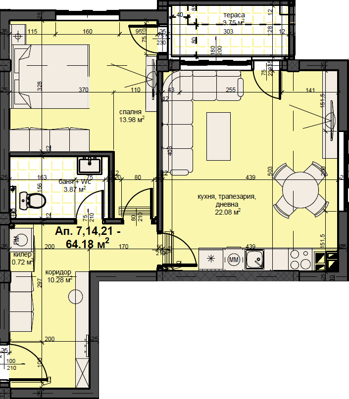
64.18 м2 -
Общи части от сграда КВ.М.
9.44 м2 -
-
Обща застроена площ кв.м.
73.62 м2
-
Етаж
4 -
секция
Блок К -
Статус
Свободен - Имам интерес към следния апартамент - Ап.21, Секция , Етаж 4